TOP

BRO-ROOMロゴ

お電話はこちら

受付:10:00~18:00 (土日祝除く)

お問い合せはこちら

BRO-ROOM宅内Iotリノベーション BRO-ROOM宅内Iotリノベーション

こんなお悩みはございませんか? こんなお悩みはございませんか?

男性の画像 男性の画像

BRO-ROOMが解決します BRO-ROOMが解決します

BRO-ROOMとは

空室に悩むマンションオーナー様向けに、
まとまった費用なしで
お部屋をリノベーションできる画期的なサービスです。

初期投資は弊社が立て替え、オーナー様は毎月のお支払いのみで、
リスクを最小限に抑えて空室対策が可能となります。

Point①
入居率向上

入居率向上イメージ画像

オーナー様をはじめ管理会社や仲介会社とも協力し、適正な募集家賃を作り上げます。さらに、サブリースありプランであれば満室経営を実現することが可能です。

Point②
家賃UP

家賃UPイメージ画像

お部屋の構造や設備など課題点を徹底的にお調べし、最適なリノベーションを施すことで、募集家賃が向上します。

Point③
初期投資ゼロ

初期投資ゼロイメージ画像

BRO-ROOMの費用は、初期投資を弊社が立て替えるので、オーナー様のお支払いは月額費用のみ!サブリースありプランであれば手出しゼロで収入UPを実現します。

200室以上のご契約と施工実績 200室以上のご契約と施工実績

初期投資不要でリノベーションができる理由 初期投資不要でリノベーションができる理由

弊社は業界でも稀な債権流動化というファイナンスの仕組みで初期導入費用0円
実現しています。

上場企業の信用力と金融機関との連携によりオーナー様への負担を軽減します!
リースやローン等ファイナンス契約を利用しませんので、
金融機関による審査は不要で与信枠も使いません。

借入なし 借入なし ローンなし ローンなし リースなし リースなし

※初期導入費用0円とは、初期費用相当額を分割払いにしたプランです。

出口戦略

BRO-ROOMを導入することにより、利益が向上し、高く売却する(出口戦略)ことが可能になります

「機会損失をゼロに」イメージ画像

機会損失をゼロに

空室の状態が続けばその分機会損失が拡大し、利回りが低下していきます。

BRO-ROOMは機会損失を利益に変えるためにとても有効な手段です!利益が増えればその分高く売却することが可能です。

「相続税対策」イメージ画像

相続税対策

リノベーションは、相続発生前に行うことで工事に掛かった費用分だけ相続財産が減ることになります。

さらに、BRO-ROOMは大きな現金を必要とせずにリノベーションが可能なので、手軽に相続税対策が可能です。

効果が期待できる物件とは

⻑年の空室が解消され、オーナー様は初期の手出しが0円で家賃収入がアップします!

BRO-ROOMで効果が期待できる物件とは

長期空室がある

手出し0で工事完了後から収入が入ってきます。※サブリースを適用した場合

リフォーム代金が支払えない

当社がリフォーム代金を立て替えます。

物件付加価値を高め、売却時利益を上げたい

実質利回りを上げて売却することができます。

導入事例

リノベーションのビフォーアフターとキャッシュフロー
改善事例をご紹介

導入事例1

熊本県 ファミリー物件 総戸数:11戸 / 空室:3室

昭和によく見るDK間取りと2間の和室で部屋付けが困難、DKと居室を一体化することでDK⇒LDK間取りと2間も洋室に変更することで最新のお部屋へ

リノベーション内容

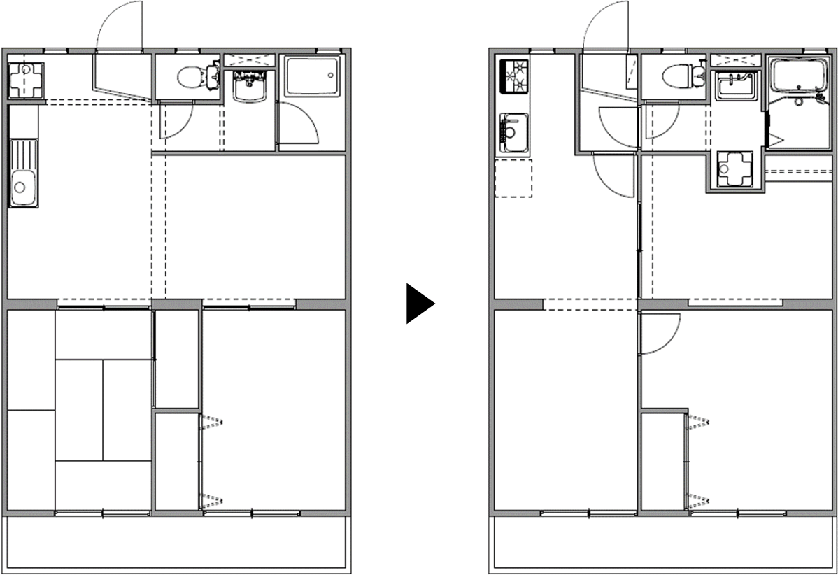
新旧間取り図

平米数:60.00m² 間取り変更:3DK⇒2LDK

・新調(トイレ、システムキッチン、システムバス、
下駄箱、洗面化粧台、水回り)

・クロス張り替え(壁、天井) ・フロアタイル貼替え

新旧間取り図
リノベーションのビフォーアフター
リノベーションのビフォーアフター



IoTリノベーションをしたことで募集家賃が劇的に向上、月額料金を差し引いてもしっかりと利益が残ります。

リノベーション前後の利益比較図
  • リノベーション前後の利益比較図

結果としてリノベーション後、
たった1ヶ月で部屋付けが完了!

導入事例2

愛知県 シングル物件 総戸数:18戸 / 空室:4室

採光の取れないリビングと古いままの住宅設備機器で部屋付けが困難、リビングの向きを変更し採光の取れる 間取りと住宅設備を全て替えることで清潔感のあるお部屋へ

リノベーション内容

新旧間取り図

平米数:50.00m² 間取り変更:2LDK⇒1LDK

・新調(トイレ、システムキッチン、システムバス、
下駄箱、洗面化粧台、水回り)

・クロス張り替え(壁、天井) ・フロアタイル貼替え

新旧間取り図
リノベーションのビフォーアフター
リノベーションのビフォーアフター



IoTリノベーションをしたことで募集家賃が劇的に向上、月額料金を差し引いてもしっかりと利益が残ります。

リノベーション前後の利益比較図
  • リノベーション前後の利益比較図

結果としてリノベーション後、
たった1ヶ月で部屋付けが完了!

導入事例3

福岡県 シングル物件 総戸数:15戸 / 空室:3室

玄関から居室が丸見えで部屋付けが困難、玄関ホールの造作でプライバシーを守り、寝室スペースの造作で 生活し易いお部屋へ

リノベーション内容

新旧間取り図

平米数:30.00m² 間取り変更:なし

・新調(水回り) ・寝室部分壁造作

・クロス張替え(壁、天井) ・フロアタイル張替え

新旧間取り図
リノベーションのビフォーアフター(居室)
リノベーションのビフォーアフター(玄関)



IoTリノベーションをしたことで募集家賃が劇的に向上、月額料金を差し引いてもしっかりと利益が残ります。

リノベーション前後の利益比較図
  • リノベーション前後の利益比較図

結果としてリノベーション後、
たった1ヶ月で部屋付けが完了!

メリット

女性の画像
初期投資不要イメージ画像

初期投資不要

リース・ローン・借入もせず、
初期費用0円でリフォームを実施できます。

収入安定イメージ画像

収入安定

サブリースと組み合わせることで、
家賃収入が確定します。

物件バリューアップイメージ画像

物件バリューアップ

物件付加価値が高まり、
売却時の利益が大きくなります。

BRO-ROOMのご利用には条件がございます。
詳しくは弊社担当営業までご相談ください。

導入までの流れ

お打ち合わせ・お見積もりはすべて無料です

1

ご相談・お打ち合わせ

BRO-ROOMに魅力を感じていただけましたら、個別にお打ち合わせのお時間をいただき、現状のお困りごとや課題をヒアリングさせていただきます。

2

対象物件ピックアップ

(複数所有の場合)所有物件のリストを共有いただき、BRO-ROOMでバリューアップ可能な物件をピックアップしていきます。

3

調査・シミュレーション

対象物件の調査と当社独自の調査を行い、BRO-ROOM導入による募集家賃の向上とBRO-ROOM月額料金をシミュレーションします。

4

お見積もり・ご契約

BRO-ROOM導入のお見積もりをご提案します。お見積もりの内容でご納得いただけましたら、ご契約となります。

入居率UP・家賃収入UP・利回りUPし、満室経営のお手伝いをいたします。
BRO-ROOMの効果が期待できる物件がございましたら、営業担当までご相談ください。

よくある質問

  • Q.工事期間はどのくらいかかりますか?

    +

    A.物件の構造や築年数、契約室数によって変わりますが、早ければ約1ヶ月で完了します。

  • Q.なぜ初期費用0円でできるのですか?

    +

    A.当社では金融機関と連携した債権流動化という仕組みで実現しております。

  • Q.すべての物件、お部屋でサブリースは
    可能なのでしょうか?

    +

    A.サブリースを行うには様々な条件がございますので、別途サブリース会社にご相談ください。

  • Q.物件が売却、取り壊しとなる場合、BRO-ROOMの費用はどうなりますか?

    +

    A.原則は一括返済となりますが、売却の際は新所有者様に承継いただく場合がございます。

強みと実績

賃貸業界で20年以上の実績があり、これまで集合住宅向けのインターネット無料設備
『B-CUBIC』を中心に18万戸以上にサービスを提供しております。
また、全国860社以上の管理会社様と提携し、新たな価値創造に取り組んでおります。


【商号】

株式会社ブロードエンタープライズ
【代表取締役】
中⻄ 良祐
【設立年月日】
2000年12月15日
【事業内容】
マンション向け高速インターネット『B-CUBIC』
IoTインターフォンシステム『BRO-LOCK』
宅内IoTリノベーション『BRO-ROOM』
【所在地】
大阪本社:大阪府大阪市北区太融寺町5-15
梅田イーストビル9階

【事業許可・認定】
電気通信事業者認定(届出番号:E17-2644)
小売電力事業者認定(登録番号:A0535)
事業継続力強化計画認定
健康経営優良法人
大阪市女性活躍リーディングカンパニー
「二つ星認証」(認証番号:332)
男女いきいき・元気宣言認定
会社実績 会社HP

BRO-ROOMのご利用には条件がございます。
詳しくは弊社担当営業までご相談ください。

copyright©Broad Enterprise co.ltd. All Right Reserved